100 mq
3
1
In località Santa Maria di Sclaunicco, caratteristica Casa in linea in zona centrale.
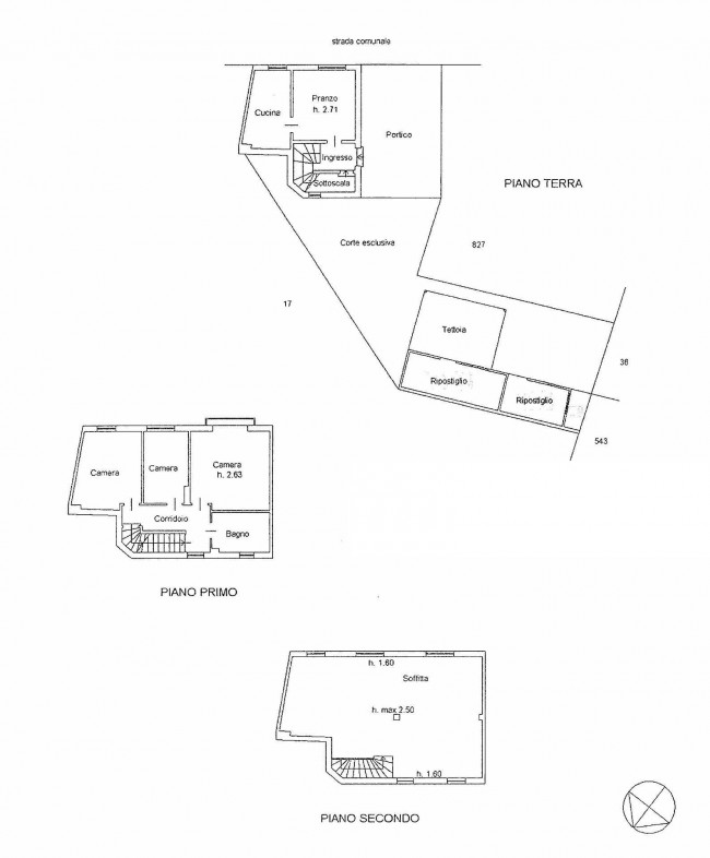
La casa di dispone su due piani più soffitta e si compone internamente al piano terra da ingresso, salottino, cucina e ripostiglio nel sottoscala; al piano primo da corridoio, tre camere e bagno finestrato con vasca; al secondo piano troviamo una soffitta praticabile allo stato grezzo adatta per uso ripostiglio. All'interno della corte comune in corpo staccato troviamo due ripostigli (con copertura da rifare) con annesso un piccolo scoperto di proprietà utilizzabile come posto auto. In corpo staccato troviamo un piccolo appezzamento di terreno adibito ad orto circa 150 mq
La casa è modestamente abitabile, necessita comunque di alcuni lavori di manutenzione come la posa della pavimentazione delle camere e l'eventuale sistemazione del bagno, dotata di impianto di riscaldamento con caldaia a metano e di climatizzatore al primo piano.
La località di Santa Maria è situata a circa 3 km da Pozzuolo del Friuli e da Mortegliano e circa 12 km da Udine
Classe energetica F - EPgl nren 223,67 kwh/mq anno - EPgl ren 1,44 kwh/mq anno
Metrature indicativa: piano terra circa 30 mq, piano primo circa 60 mq, soffitta circa 60 mq, accessori con scoperto totali circa 60 mq, orto circa 150 mq
LE IMMAGINI E LE INFORMAZIONI PRESENTI NELL'ANNUNCIO NON COSTITUISCONO ELEMENTO CONTRATTUALE.

100 mq
3
1